Mẫu Thiết Kế Nội Thất Phòng Thờ Tam Thế Phật - Bộ Quan Âm – La Hán Hộ Pháp Linh Thiêng

Chủ đầu tư

Anh Thống
Công năng

Công năng

Thờ cúng
Địa chỉ

Địa chỉ

Kinh phí

Kinh phí

Loại hình

Loại hình

Nội thất phòng thờ
Đơn vị thiết kế

Đơn vị thiết kế

Nam Thành Phát
Diện tích

Diện tích

346m2
Năm thi công

Năm thi công

Mục lục

Mẫu Thiết Kế Nội Thất Phòng Thờ Tam Thế Phật - Bộ Quan Âm – La Hán Hộ Pháp Linh Thiêng

Trong kiến trúc tâm linh Việt Nam, đặc biệt là những không gian thờ tự quy mô như nhà thờ 5 gian có hậu cung, nội thất phòng thờ Phật luôn là hạng mục được cân nhắc kỹ lưỡng và đặt lên hàng đầu. Bởi nơi đây không chỉ đơn thuần là vị trí tôn trí tượng Phật, mà còn là không gian kết nối đời – đạo, con cháu – tổ tiên, con người – đức tin.

Phòng thờ Tam Thế Phật kết hợp Bộ Quan ÂmLa Hán Hộ Pháp thể hiện đầy đủ ý nghĩa từ bi – trí tuệ – hộ trì, đồng thời mang đến sự chuẩn mực trong nghi lễ và phong thuỷ thờ tự.

Hy vọng mẫu thiết kế này sẽ mang đến cho quý vị những gợi ý chuẩn xác và hữu ích trong hành trình kiến tạo một không gian thờ tự trang nghiêm, linh thiêng và đậm hồn kiến trúc Việt.

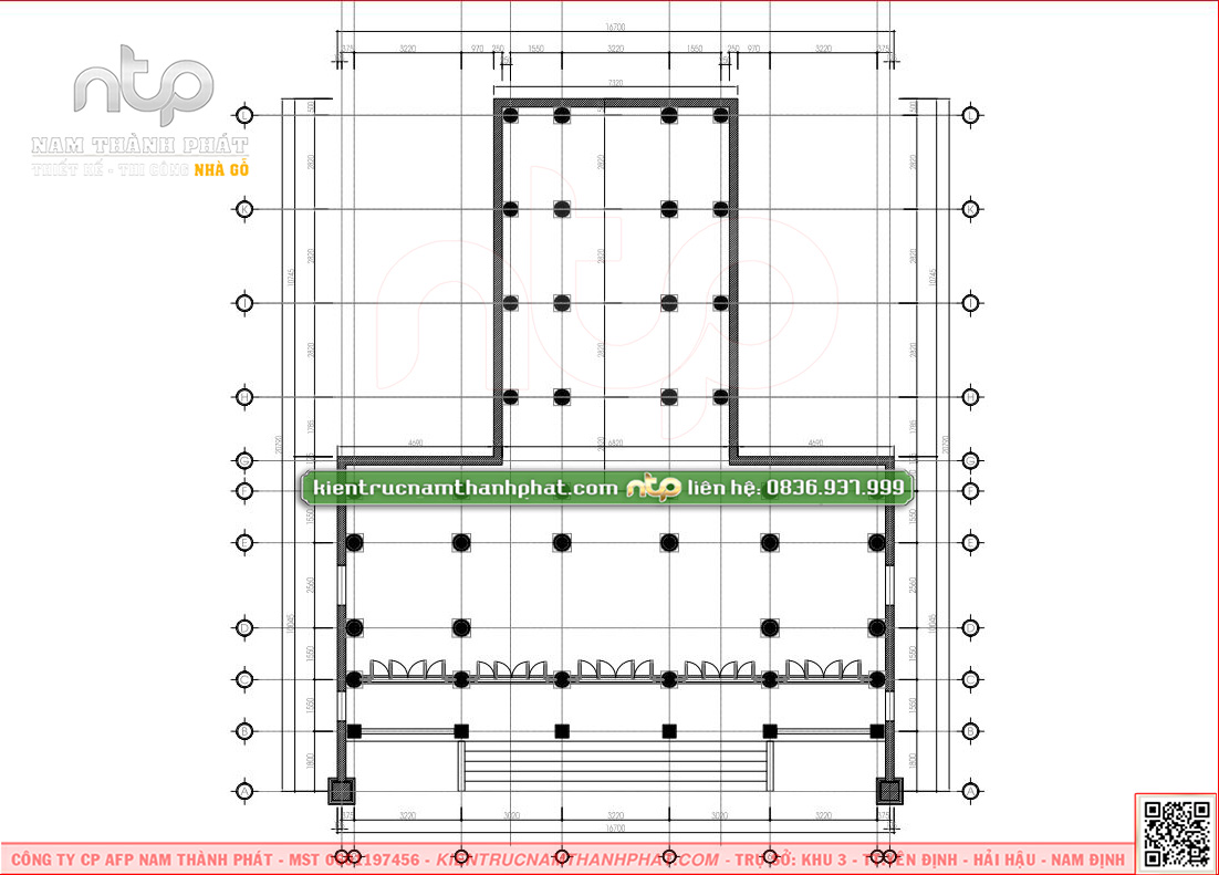
1. Thông số kỹ thuật nội thất phòng thờ nhà gỗ 5 gian có hậu cung 

Nội thất phòng thờ Tam Thế Phật được bài trí trang trọng trong ngôi nhà 5 gian có hậu cung với diện tích 346m2 vô cùng rộng rãi và bề thế. Kích thước chiều ngang 16.7m và chiều sâu 20.73m, tính cả bậc tam cấp.

Ngôi nhà được được thành 5 gian tương ứng các bước gian hợp lý lần lượt là 3.22 – 3.02 – 3.22 – 3.02 – 3.22 (m). Công trình sử dụng 44 cột bao gồm 14 cột cái, 24 cột quân và 6 cột hiên đá.

2. Nội thất phòng thờ Tam Thế Phật – Bộ Quan Âm – La Hán Hộ Pháp linh thiêng

Nội thất phòng thờ Tam Thế Phật được bố trí trong nhà thờ họ 5 gian có hậu cung. Vật liệu chính là bê tông giả gỗ, giải pháp kiến trúc hiện đại, tiết kiệm chi phí nhưng vẫn giữ trọn vẹn nét cổ kính cho công trình. Gian thờ được bố trí ở vị trí trang trọng ở gian chính giữa, trải dài từ tiền đường qua trung đường đến hậu cung.

♦♦♦ Quý vị có thể tham khảo các mẫu nhà gỗ cổ truyền 5 gian TẠI ĐÂY

Không gian thờ tự được thiết kế chỉn chu, bố trí đầy đủ các vật phẩm thờ cúng theo đúng lễ nghi. Đầu tiên, không thể không kể đến đó chính là các bức đại tự được treo trang trọng phía trên, kết hợp cùng đôi câu đối chạm nổi tinh xảo hai bên. Không chỉ mang tính thẩm mỹ, hoành phi câu đối còn mang giá trị biểu tượng, nhắc nhở con cháu về đạo hiếu, đạo nghĩa và tinh thần hướng thiện.

Không kém phần nổi bật là hệ 4 bộ cửa võng được bố trí theo từng cặp câu đối, tạo chiều sâu thị giác và tăng tính tôn nghiêm cho không gian thờ tự. Mỗi bộ cửa võng mang một hoa văn riêng, thể hiện thông điệp cát tường trong văn hoá thờ tự người Việt như “ngũ phúc lâm môn”, mẫu cửa võng hoa hồng chim trĩ, mây cuốn Rồng và Rùa ...  

Mỗi cặp cột cái đều được bố trí cửa võng - câu đối - bức đại tự trang trọng 

Bàn thờ và bàn cúng được sắp đặt theo đúng thứ bậc. Các vật phẩm thờ cúng được trang bị đầy đủ, chuẩn chỉnh đến từng chi tiết, từ bộ tam sự gồm đỉnh đồng và đôi hạc chầu góp phần tôn nghiêm không gian, bát hương, mâm bồng… đều được lựa chọn đồng bộ, tạo bố cục cân đối và chuẩn mực.

Bàn thờ tam cấp được Nam Thành Phát thiết kế theo thứ bậc rõ ràng, phù hợp cho việc thờ tự các vị Phật và Bồ Tát theo đúng nguyên tắc tôn trí. Kết cấu phân tầng giúp không gian thờ trở nên cân đối, trang nghiêm, đồng thời tôn vinh giá trị biểu tượng của từng pho tượng được đặt trên đó.

Hàng trên cùng của bàn thờ là nơi tôn trí Bộ Tam Thế Phật, tượng trưng cho quá khứ, hiện tại và tương lai, gửi gắm thông điệp sâu sắc nhắc nhở con người luôn sống hướng thiện, tin vào luật nhân quả ba đời rõ ràng.

Hàng giữa là Bộ Quan Âm ngồi trên tòa sen và có hào quang chạm triện tinh xảo, thể hiện sự tôn kính cao độ, đại diện cho trí tuệ, từ bi và khả năng độ thoát chúng sinh.

Hàng dưới cùng tôn trí 3 vị thần linh: Địa Tạng Bồ Tát ở giữa với ấn thiền cùng với hai vị La Hán hộ pháp hai bên, cực kỳ quen thuộc trong các chùa chiền Bắc Bộ, thể hiện sự bảo vệ và hộ trì cho chánh pháp.

Nội thất phòng thờ Tam Thế Phật linh thiêng 

♦♦♦ Mời quý vị tham khảo thêm các mẫu nội thất phòng thờ đẹp chuẩn phong thủy TẠI ĐÂY.

Mẫu thiết kế nội thờ phòng thờ Tam Thế - Bộ Quan Âm – La Hán Hộ Pháp là một sự tổng hòa giữa kiến trúc truyền thống, vật liệu hiện đại và triết lý Phật giáo sâu sắc. Từ sự sắp đặt chuẩn mực của Tam Thế Phật đến sự tinh xảo của cửa võng và hệ vì kèo chồng rường đấu sen đã kiến tạo nên một không gian thờ cúng uy nghi, xứng đáng là linh hồn của nhà thờ họ 5 gian có hậu cung.

3. Nam Thành Phát – Đơn vị Thiết kế và Thi công nội thất nhà gỗ cổ truyền chuẩn mực 

Công ty Cổ phần AFP Nam Thành Phát (Nhà gỗ AFP Nam Thành Phát) tự hào là đơn vị uy tín trong lĩnh vực thiết kế và thi công các công trình nhà gỗ cổ truyền như nhà gỗ 3 gian, nhà gỗ 5 gian, các công trình tâm linh, các công trình nhà gỗ trên tầng thượng đẹp, nhà gỗ có hậu cung, nhà thờ họ, nhà thờ giáo họ và các công trình nội thất gỗ tự nhiên cùng các hạng mục phụ trợ trong nhà gỗ.

Tại Nhà gỗ AFP Nam Thành Phát, chúng tôi:

* Tôn trọng và bảo vệ quyền lợi khách hàng trong yêu cầu thiết kế

* Lựa chọn phương án thiết kế và biện pháp thi công tối ưu nhất

* Hoa văn độc quyền, chọn theo yêu cầu và sở thích của gia chủ 

* Thợ gia truyền, máy móc thiết bị, nhà xưởng hiện đại tối tân

* Thi công tỉ mỉ, lắp dựng nhanh chóng, vận chuyển an toàn 

Với đội ngũ kỹ sư, kiến trúc sư và đội ngũ thợ lành nghề tâm huyết cùng phương châm “Thiết Kế Chất Lượng - Thi Công Tỉ Mỉ - Đối Tác Chân Thành”, Nhà gỗ AFP Nam Thành Phát hứa hẹn mang lại cho quý khách hàng những sản phẩm chất lượng và những trải nghiệm tuyệt vời nhất.

>>> Đừng bỏ lỡ những mẫu thiết kế nhà gỗ cổ truyền đẹp – sang – chất TẠI ĐÂY.  

>>> Cùng khám phá những dự án thực tế được bàn giao cho khách hàng TẠI ĐÂY.

>>> Tham khảo thêm những video hay về nhà gỗ TẠI ĐÂY.

Xem thêm:

* Nhà gỗ Nam Thành Phát – Đơn vị thi công nhà gỗ cổ truyền uy tín hàng đầu

* Tầm quan trọng của bản vẽ thiết kế trong thi công nhà gỗ cổ truyền| Nam Thành Phát

* Chất lượng dịch vụ của nhà gỗ Nam Thành Phát có tốt không?

* Các bước thi công hoàn thiện một căn nhà gỗ tại Nam Thành Phát

Mọi thông tin chi tiết xin liên hệ:

CÔNG TY CỔ PHẦN AFP NAM THÀNH PHÁT

® Fanpage: Kiến Trúc Nam Thành Phát

Youtube: Nhà Gỗ Nam Thành Phát.

® Hotline: 0836.937.999 hoặc 0889 889 663 

Email: arc9.haithinh@gmail.com

® Tư vấn thiết kế trực tiếp: Tổng Giám Đốc - Kiến Trúc Sư Hải Thịnh

MST: 0601197456

Văn phòng thiết kế / Xưởng sản xuất hợp nhất: Km 185 - Khu 3 -Thị trấn Yên Định - Huyện Hải Hậu - Tỉnh Nam Định (nay là xã Hải Hậu, tỉnh Ninh Bình).

Back to top

Nam Thành Phát chuyên thiết kế, thi công nhà gỗ cổ truyền 3 gian, 5 gian, nhà thờ họ, từ đường, nội thất gỗ lim cao cấp tại Nam Định. Hotline 0836.937.999 - Website: kientrucnamthanhphat.com - Xưởng gỗ chuẩn nghề truyền thống Bắc Bộ.