Hotline mua hàng
| Chủ đầu tư | Anh Hưng | Công năng | Thờ Cúng + Tiếp Khách + Nghỉ Ngơi |
| Địa chỉ | Nghệ An | Kinh phí | |
| Loại hình | Nhà Thờ Gỗ 3 Gian 2 Dĩ Có Hậu Cung | Đơn vị thiết kế | Nam Thành Phát |
| Diện tích | 160 m2 | Năm thi công | |
Mục lục
Nhà gỗ AFP Nam Thành Phát tiếp tục giới thiệu đến quý vị một mẫu nhà gỗ 3 gian 2 dĩ có hậu cung được thiết kế tại Nghệ An. Đây là công trình mang đậm nét kiến trúc truyền thống nhưng vẫn đảm bảo đầy đủ tiện nghi cho sinh hoạt hiện đại. Cùng xem ngay dưới đây!

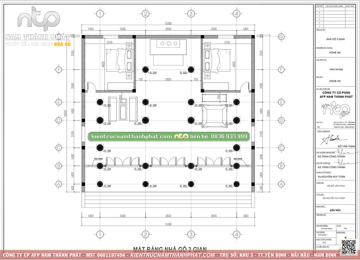
Mặt bằng nhà gỗ 3 gian 2 dĩ có hậu cung
Nhà gỗ 3 gian 2 dĩ được thiết kế trong khuôn viên sân vườn rộng rãi, với kiến trúc cổ truyền kết hợp cùng tỷ lệ hợp lý, đảm bảo không gian thờ tự trang nghiêm và sinh hoạt thuận tiện. Với các thông số kỹ thuật:
+ Diện tích: 160m2 với chiều ngang 13.3m x sâu 12.05m (kích thước phủ bì, chưa tính bậc tam cấp)
+ Bước gian: 3 gian giữa rộng 3.5m; hai dĩ rộng 1.4m, phần hiên rộng 1.4m
+ Bao gồm: 20 cột đứng đất với 6 cột cái đường kính 35cm, 10 cột quân đường kính 32cm và 4 cột hiên đường kính 30cm.

Mặt cắt đứng nhà gỗ 3 gian 2 dĩ
Căn nhà được bố trí gồm 3 gian chính, cơi nới thêm 2 dĩ 2 bên tạo không gian thông thoáng hơn cho phần nội thất. Bố trí gồm 3 bộ cửa bức bàn 4 cánh truyền thống, chiều cao từ nền lên tới đỉnh mái 7.995m, lớp ngói mũi hài và bờ mái đắp gạch hoa chanh đẹp mắt.
Căn nhà được làm theo lối chồng tường đấu sen - hình ảnh những con rường con bò xếp chồng lên nhau thành tầng tầng lớp lớp đẹp mắt. Được bố trí với 6 hàng cột và trốn 2 cột cái ở ngay gian chính giữa càng tạo không gian thờ cúng rộng rãi thông thoáng.
Phối cảnh thiết kế bản vẽ 3D nhà gỗ 3 gian 2 dĩ có hậu cung này được thiết kế theo kiểu 3 gian 2 mái đầu hồi bít đốc, phần hậu cung được xây gạch trát vữa như tường hồi cho đồng bộ.

Phối cảnh chính diện nhà gỗ 3 gian 2 dĩ
Nhà gỗ 3 gian 2 dĩ có diện tích sàn 160m2 với gian chính giữa sử dụng làm không gian thờ cúng và có cơi nới thêm phần hậu cung giúp không gian thờ cúng tách biệt và linh thiêng hơn.

Nhà gỗ 3 gian 2 dĩ có hậu cung rộng rãi tiện nghi
Căn nhà gỗ 3 gian này được tôn cao so với cos nền sân 5 bậc cấp. trước hiên có bố trí thêm bức bình phong và đôi cột đồng trụ. Tất cả đều được sử dụng từ đá xanh Thanh Hoá bền chắc, chống thấm tốt - giúp cân bằng âm dương tránh những linh khí xấu ảnh hưởng đến không gian thờ tự.

Hệ cửa bức bàn trong nhà gỗ 3 gian 2 dĩ
Căn nhà gỗ 3 gian 2 dĩ có hậu cung này được bố trí gồm 3 bộ cửa bức bàn 4 cánh với các lá pano ghép với nhau chạm khắc tinh xảo. Với các hoa văn ngũ phúc lâm môn, hoa lá, tứ quý, tứ bình, tranh đông bích mang lại giá trị thẩm mỹ cho căn nhà.
Bức bình phong đá đặt trước nhà được chạm khắc tinh xảo với những đường vân mây hay chạm rồng bay uốn lượn giúp ngăn chặn tà khí xâm nhập.

Hình ảnh phần dĩ và hệ thống thông phong nhà gỗ 3 gian
Phần dĩ của căn nhà gỗ 3 gian thay vì chỉ thưng vah bình thường thì ở đây được chạm khắc hình ảnh cây sen với các chi tiết hoa sen nở, nụ sen, lá và đài sen. Việc lựa chọn hoa sen để chạm khắc không chỉ tăng giá trị thẩm mỹ mà còn là biểu tượng của sự thanh cao, thuần khiết và đức hạnh.
Phía trên cùng là hệ thống thông phong với những nan gỗ đục thoáng cùng chạm khắc hoa lá con song. Ngoài công dụng giúp lưu thông không khí giữa các gian trong nhà vách thông phong còn mang lại giá trị thẩm mỹ tạo điểm nhấn mỹ thuật cho tổng thể căn nhà.
Từng chạm khắc hoa văn trong nhà gỗ như trên kẻ hiên, con chồng, riềm mái, con rường, đầu dư,... đều được chăm chút tỉ mỉ bởi những bàn tay thợ lành nghề tại nhà gỗ Nam Thành Phát. Mỗi nét đục, đường chạm không chỉ để trang trí mà còn hàm chứa văn hóa – tín ngưỡng – quan niệm sống của người Việt xưa, lưu giữ giá trị văn hoá truyền đời.

Hạng mục đá xanh giúp nhà gỗ thêm phần uy nghiêm
Đôi cột đồng trụ đá sừng sững trước hiên nhà giúp trấn trạch bảo vệ không thờ tự cho công trình. Từng đường nét chạm trổ hoa văn cũng như chạm khắc chữ hán nôm mang ý nghĩa răn dạy con cháu. Dọc theo hàng cột hiên trước nhà, gia chủ khéo léo gắn thêm hệ thống đèn lồng, tạo nên hiệu ứng ánh sáng ấm áp vào ban đêm.

Không gian thoáng đãng thẩm mỹ
Phía sau nhà gỗ 3 gian 2 dĩ được bố trí thêm 2 phòng ngủ khép kín tiện nghi, đảm bảo sự riêng tư yên tĩnh nhưng vẫn gắn kết chặt chẽ với tổng thể căn nhà. Hệ thống cửa sổ được bố trí ở dộc 2 dĩ và ở hai bên phòng ngủ hướng ra phần sân vừa giúp lấy ánh sáng tự nhiên, lưu thông không khí cũng như tạo cảm giác thoáng đãng cho không gian bên trong.

Phần hậu cung phía sau nhà gỗ 3 gian
Phần hậu cung được thiết kế lùi về sau cùng của gian giữa - nơi đây là không gian thờ chính vừa tạo chiều sâu vừa mang lại sự yên tĩnh và linh thiêng nơi chốn thờ.

Toàn cảnh nhà gỗ 3 gian 2 dĩ từ trên cao
Căn nhà được bố trí trên khuôn viên đất rộng rãi, phần hiên trước thông thoáng, là không gian để nhân nhi chén trà hay nơi đón nắng sớm và gió mát. Hình ảnh mái ngói mũi hài đỏ tươi với độ dốc vừa đủ dễ dàng cho việc thoát nước, phù mái toàn bộ phần hiên mang lại bóng mát cũng như chống mưa tạt vào hiên.

Không gian rộng rãi thông thoáng
Hi vọng với một vài thông tin về không gian nhà gỗ 3 gian 2 dĩ có hậu cung này tại Nghệ An góp phần giúp quý vị có thêm nhiều ý tưởng cho không gian nghỉ ngơi cũng như thờ cúng tổ tiên gia đình bạn.
Trên hành trình bảo tồn và phát huy tinh hoa kiến trúc cổ truyền dân tộc, Nhà gỗ AFP Nam Thành Phát không ngừng khẳng định vị thế là đơn vị thiết kế – thi công trọn gói các công trình nhà gỗ truyền thống uy tín hàng đầu hiện nay. Đặc biệt, các mẫu nhà gỗ 3 gian 2 dĩ có hậu cung luôn được các dòng họ, gia chủ tin tưởng lựa chọn mang đậm tinh hoa văn hóa dân tộc.
Tham quan xưởng Nhà gỗ AFP Nam Thành Phát
Xưởng sản xuất nhà gỗ Nam Thành Phát đặt tại trung tâm thị trấn Yên Định, huyện Hải Hậu, tỉnh Nam Định – chỉ cách trung tâm thành phố Nam Định khoảng 35km về phía Đông Nam. Vị trí thuận tiện giúp quý khách dễ dàng tham quan xưởng, khảo sát thực tế công trình, đồng thời đánh giá trực tiếp chất lượng gỗ, quy trình thi công và tay nghề thợ.
Với hàng trăm công trình thực tế trải dài khắp Bắc – Trung – Nam, AFP Nam Thành Phát tự tin đồng hành cùng quý khách trong hành trình kiến tạo nên những ngôi nhà gỗ truyền thống chuẩn mực – trường tồn với thời gian. Hãy gửi yêu cầu tư vấn cho chúng tôi quy FORM hoặc qua hotline 0836 937 999 / 0889 889 663 để được tư vấn những mẫu nhà phù hợp nhanh chóng và chuẩn xác nhất.
>>> Tham khảo thêm những mẫu thiết kế nhà gỗ cổ truyền đẹp Tại Đây .
>>> Tham khảo thêm những video hay về nhà gỗ Tại Đây .
MỌI THÔNG TIN CHI TIẾT XIN LIÊN HỆ:
CÔNG TY CP AFP NAM THÀNH PHÁT
Youtube: Nhà Gỗ Nam Thành Phát
Email: arc9.haithinh@gmail.com
Địa chỉ: Km 185 - Khu 3 -Thị trấn Yên Định - Huyện Hải Hậu - Tỉnh Nam Định
MST: 0601197456
Thiết kế chất lượng - Thi công tỉ mỉ - Đối tác chân thành !!!