Hotline mua hàng
Mục lục
Trong kho tàng kiến trúc cổ truyền Việt Nam, nhà gỗ 5 gian từ lâu đã trở thành biểu tượng của sự bề thế, sang trọng và gắn bó mật thiết với nếp sống văn hoá Bắc Bộ. Nhưng bạn có bao giờ thắc mắc: Nhà gỗ 5 gian nên rộng bao nhiêu? Cao bao nhiêu? Kích thước cột, kèo, gian giữa – gian hồi tính thế nào mới chuẩn phong thủy?
Bài viết này Nam Thành Phát sẽ cùng bạn “bật mí” những kích thước chuẩn phong thuỷ của nhà gỗ 5 gian, đồng thời hé lộ những con số vàng - bí quyết để gia chủ đón tài lộc, thịnh vượng và vượng khí dồi dào.
Khi nói đến phong thủy, nhiều người thường chỉ nghĩ đến hướng nhà hay vị trí đất. Thực tế, kích thước cũng giữ vai trò không kém phần quan trọng, bởi nó quyết định sự cân đối – hài hòa – tương thích với vận khí. Với một ngôi nhà gỗ 5 gian – vốn đã bề thế và có tính biểu tượng cao – việc lựa chọn kích thước chuẩn càng trở thành yếu tố then chốt.
Một ngôi nhà gỗ 5 gian nếu bước gian quá hẹp sẽ tạo cảm giác bí bách, thiếu bề thế; ngược lại, nếu gian quá rộng, tỉ lệ mái và cột dễ bị “phá dáng”.

- Nhà gỗ chuẩn kích thước: mặt tiền cân đối, mái hiên thướt tha, nhìn từ xa đã thấy “cái thần” của kiến trúc truyền thống.
- Nhà lệch chuẩn: mái dốc hoặc cụt, hàng cột bị rời rạc, mất đi vẻ uy nghi vốn có.
Với bố cục 5 gian:
- Gian giữa: nơi đặt bàn thờ, tiếp khách, cần sự rộng rãi, trang nghiêm.
- Hai gian bên: dùng làm nơi sinh hoạt, tiếp khách, phải vừa đủ thoải mái, không dư thừa.

Bố trí các gian cân đối hài hoà
- Hai gian buồng/hồi: thường làm phòng nghỉ ngơi khép kín, kho hoặc buồng phụ, tránh chiếm quá nhiều diện tích.
Nếu kích thước sai lệch: gian giữa hẹp → bàn thờ mất trang trọng; gian biên quá rộng → công năng bị lãng phí. Như vậy, kích thước được coi là vô cùng quan trọng, là chìa khóa để không gian sống hợp lý, hài hòa cân đối.
Phong thủy coi trọng sự thông khí: khí phải lưu chuyển nhịp nhàng qua cửa chính, gian giữa, ra hiên, rồi thoát ra sau.
- Nhà có tỷ lệ vàng → khí lưu thông, ánh sáng – gió hòa hợp → gia chủ đón sinh khí, tài lộc.

Không gian rộng thoáng lưu thông khí tốt
- Còn nhà có kích thước “phạm hung” → khí bị bế tắc, hoặc thất tán → dễ sinh bất ổn về sức khỏe và tài vận.
Người xưa quan niệm: “Nhà vuông thì ở yên, nhà lệch thì ở chẳng lành”. Chính sự rạch ròi này đã giúp nhiều công trình tồn tại hàng trăm năm mà vẫn giữ nguyên dáng vẻ và vượng khí. Tại Nam Thành Phát trước khi tiến hành thi công vào 1 công trình nhà gỗ 5 gian đều phải tuân thủ chặt chẽ nguyên tắc, hoàn thiện hồ sơ bản vẽ chi tiết tránh những sai sót không đáng có khi đi vào gia công các cấu kiện.
Kích thước nhà gỗ 5 gian Bắc Bộ là tập hợp các thông số chuẩn về chiều rộng, chiều sâu, chiều cao và tỷ lệ giữa các gian trong ngôi nhà gỗ truyền thống. Đây là “bộ khung số đo” định hình toàn bộ dáng dấp công trình – từ khung cột, kèo, xà cho đến mái hiên, bậc tam cấp. Đây không chỉ đơn giản là những con số đo đạc mà còn là sự tính toán kỹ lưỡng dựa trên yếu tố kỹ thuật, thẩm mỹ và phong thuỷ tuân thủ nghiêm ngặt theo thước thông thuỷ lỗ ban để chọn con số vàng mang lại tài lộc bình an.

Một ngôi nhà gỗ 5 gian thường gây ấn tượng bởi sự bề thế, nhưng cái “bề thế” ấy không chỉ đến từ vật liệu gỗ quý mà còn nhờ tỷ lệ kích thước được tính toán kỹ lưỡng. Từng bước gian, từng chiều cao cột, từng độ dốc mái đều tuân theo một “công thức ngầm” – đó chính là tỷ lệ vàng trong kiến trúc cổ truyền.
- Chiều ngang (mặt tiền): thường dao động từ 14m - 25m
- Chiều sâu: 7m -15m (tuỳ vào nhu cầu công năng hay cơi nới thêm phần hậu cung)
Kích thước gian (hay còn gọi là bước gian) là khoảng cách giữa các gian nhà, được tính từ tim cột này đến tim cột kia. Khoảng cách giữa các gian được phân bổ có thể đều nhau hoặc không đều nhau tuỳ nhu cầu sử dụng. Thông thường gian chính giữa được bố trí là gian rộng thoáng nhất so với các gian còn lại.

Mặt bằng nhà gỗ 5 gian cùng các thông số cơ bản về bước gian, đường kính cột,...
Bước gian thường là: 2,7m – 3,2m đối với gian giữa; 2,5m – 2,8m đối với các gian còn lại.
Hệ thống cột là bộ phận chịu tải lớn nhất do hệ khung truyền xuống trong đó cột cái chịu tải lớn nhất (xà chính, kèo, áp lực mái), nên kích thước lớn nhất — đảm bảo truyền lực thẳng xuống móng. Cột quân (cạnh cột cái): chịu tải phụ, giữ tỷ lệ mỹ thuật với cột cái còn Cột hiên / cột hậu: chịu tải mái phần hiên và lực ngang, thường nhỏ hơn cột cái để tạo chiều sâu thị giác.

Mặt cắt vì - thể hiện chiều cao cột, tàu mái,...
Cột cái phải “lọt” cung tốt trong thước Lỗ Ban → tượng trưng cho gốc rễ, gánh vác cả gia đạo. Các đường kính cột thường là 22cm, 24cm, 26cm, 28cm, 29cm, 30cm, 31cm, 32cm, 35cm, 38cm, 39cm, 40cm, 42cm, 45cm, 48cm,...Tuỳ nhu cầu, quy mô nhà mà đường kính và chiều cao cột được lựa chọn cho phù hợp.
- Chiều cao nhà (tính từ nền sân lên đỉnh nóc): thường bằng 1/3 chiều ngang mặt tiền, tạo tỷ lệ vàng (ví dụ: nhà rộng 15m thì cao khoảng 5m).

Mặt cắt đứng chính diện nhà gỗ 5 gian
- Độ dốc mái: dao động 68% – 70%, vừa đủ để thoát nước nhanh, vừa giữ dáng mái cong mềm mại, uyển chuyển.
- Độ cao tàu mái (từ tầm hiên lên đỉnh nóc): thường từ 2,9m - 3,2m đối với nhà ở còn với từ đường nhà thờ họ thì có thể cao hơn lên tói 3,5m-3,8m.
Trong kiến trúc truyền thống Việt Nam, mỗi con số không chỉ là một đơn vị đo lường, mà còn là linh khí ẩn chứa thông điệp phong thủy. Nhà gỗ 5 gian chuẩn mực không thể chỉ “xây cho đẹp”, mà phải đặt đúng kích thước vàng – những con số mang vượng khí – để cửa nhà mở ra tài lộc, tàu mái đón cát khí, cột kèo giữ phúc lộc lâu dài.
Thước Lỗ Ban là loại thước đo chuyên dụng dùng trong xây dựng, đặc biệt là nhà ở, mộ phần, nội thất. Có thể coi thước Lỗ Ban chính là “bản đồ phong thủy” giúp định vị con số cát tường cho gia chủ.

Hình ảnh thước lỗ ban
Thước dài 39cm, được chia thành 8 cung lớn (Phúc, Lộc, Quan, Nghĩa, Bại, Hại, Khổ, Tử). Khi đo kích thước nhà gỗ (cột, hiên, cửa, bậc thềm…), người thợ luôn chọn lọt vào các cung tốt như Phúc – Lộc – Quan – Nghĩa, tránh các cung xấu.
- Chiều dài nhà: 15,67m – 15,75m – 17,55m, những con số này lọt vào cung Tài – Lộc – Phúc, mang ý nghĩa thịnh vượng, của cải dồi dào, phúc khí đầy nhà.
- Chiều rộng nhà: 7,55m – 7,75m – 8,15m, Rơi vào cung Nghĩa – Quan – Phúc, tượng trưng cho sự chính trực, uy nghi, gia đạo yên ổn. Kích thước này đảm bảo độ thoáng khí, cân đối với bề ngang, giúp ngôi nhà bề thế mà không bị thô.
- Chiều cao cột cái: 4,65m – 4,89m – 5,07m. Lọt vào cung Quan – Nghĩa, biểu tượng cho địa vị – sự nghiệp – sự trường tồn.

- Độ cao tàu mái (từ nền đến đỉnh nóc): 7,83m – 8,19m – 8,43m, rơi vào cung Vượng – Tài – Đinh, mang ý nghĩa mái nhà che chở, tụ khí tốt, đón cát khí từ trời đất.
- Hệ cửa bức bàn: 2,13m – 2,25m – 2,31m, Lọt vào cung Đinh – Nghĩa – Quan, mang ý nghĩa gia đạo bình an, con cháu hiếu thuận, sự nghiệp hưng thịnh.

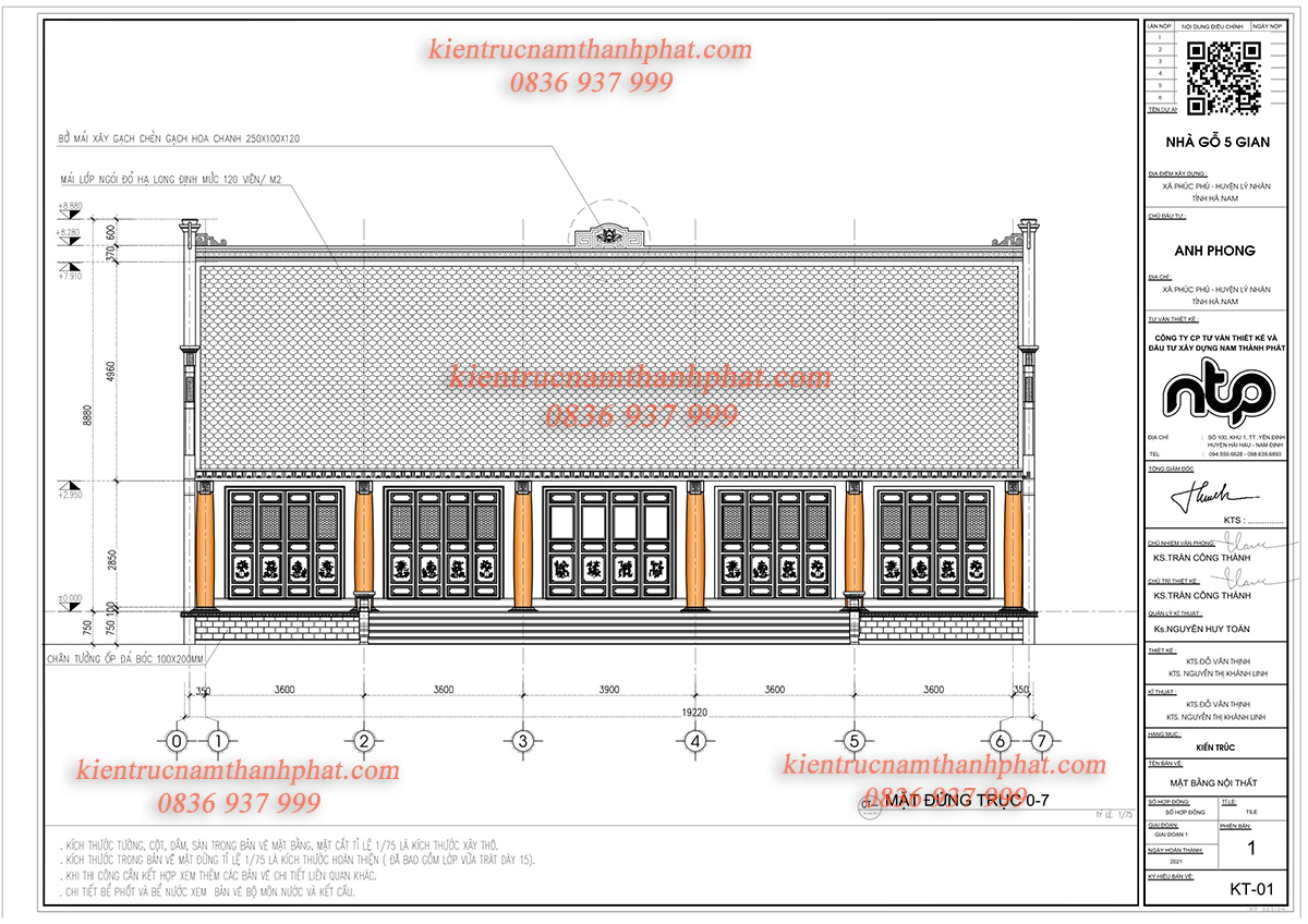
Mẫu nhà gỗ 5 gian thông hiên 28 cột tại Hà Nam
Đây được coi là mẫu nhà gỗ 5 gian đủ cột, siêu to khổng lồ được anh chủ trẻ 9x ở Hà Nam đặt hàng tại nhà gỗ Nam Thành Phát. Căn nhà được khái toán thi công từ vật tư, nhân công, ngói lợp, đục tranh ước tính 8,7 tỷ đồng năm 2022 - một con số khủng so với tầm tuổi của anh lúc bấy giờ.
♦ Tham khảo trọn bộ hồ sơ nhà gỗ 5 gian 28 cột này TẠI ĐÂY

Mặt bằng nhà gỗ 5 gian thông hiên
Căn nhà có các thông số kỹ thuật chính sau:
+ Tổng diện tích: 320m2, phòng khách 108m2 với kích thước phủ bì 25mx12.9m ( tính cả gian bếp ăn)
+ Gồm 28 cột đứng đất với 8 cột cái đường kính 48cm, 10 cột quân đường kính 45cm, 4 cột hậu đường kính 42cm và 6 cột hiên đường kính 42cm.
+ Bước gian: gian giữa 3.9m, các gian còn lại 3.6m, sâu lòng nhà 9.8m, hiên rộng 2.7m, chiều cao nhà 8.8m.

Mặt cắt đứng nhà gỗ 5 gian thông hiên 28 cột

Mẫu nhà gỗ 5 gian 2 buồng lồi
Mẫu nhà gỗ 5 gian 2 buồng lồi này được nhà gỗ Nam Thành Phát thiết kế thi công trọn gói cho chú Phương tại Tân Kỳ Nghệ An. Đây là công trình ao ước của cả đời người, chốn nghỉ ngơi thư giãn tuổi về chiều của vợ chồng cô chú.
♦ Tham khảo thêm:
+ Trọn bộ hồ sơ thiết kế mẫu nhà gỗ 5 gian 2 buồng này TẠI ĐÂY
+ Hình ảnh thi công thực tế mẫu nhà gỗ này TẠI ĐÂY

Mặt bằng nhà gỗ 5 gian 22 cột
Căn nhà có các thông số kỹ thuật chính sau:
+ Tổng diện tích: 201m2 với kích thước phủ bì 18.69mx10.755m ( kích thước phủ bì không tính bậc tam cấp)
+ Gồm 22 cột đứng đất với 8 cột cái đường kính 48cm, 8 cột quân đường kính 44cm và 6 cột hiên đường kính 40cm.
+ Bước gian: gian giữa 3.85m, hai gian cạnh còn 3.6m, hai gian buồng 3.22m, hiên rộng 1.95m, chiều cao nhà 8.11m.

Mặt cắt đứng vì thuận nhà gỗ 5 gian

Nhà gỗ 5 gian cột hiên đá
Mẫu nhà gỗ 5 gian cột hiên đá này được nhà gỗ Nam Thành Phát thiết kế thi công trọn gói cho chú Tấn tại Từ Sơn Bắc Ninh năm 2021. Công trình được sử dụng làm nhà từ đường dòng tộc họ Đào sử dụng gỗ lim Camphuchia đục chạm kênh bong tinh xảo.
♦ Tham khảo thêm:
+ Trọn bộ hồ sơ thiết kế mẫu nhà gỗ 5 gian cột hiên đá này TẠI ĐÂY
+ Hình ảnh thi công thực tế mẫu nhà gỗ này TẠI ĐÂY

Mặt bằng nhà gỗ 5 gian cột hiên đá
Căn nhà có các thông số kỹ thuật chính sau:
+ Tổng diện tích: 180m2 với kích thước phủ bì 17.19mx10.445m ( kích thước phủ bì không tính bậc tam cấp)
+ Gồm 22 cột đứng đất với 6 cột cái đường kính 39cm, 10 cột quân đường kính 36cm và 6 cột hiên đá đường kính 31cm.
+ Bước gian: gian giữa 3.39m, các gian bên 3.185m, hiên rộng 1.765m.

Mặt cắt đứng vì thuận nhà gỗ 5 gian cột hiên đá

Nhà gỗ 5 gian có hậu cung
Đây là mẫu nhà gỗ 5 gian truyền thống có hậu cung, thường được chọn cho các công trình thờ cúng, từ đường hoặc nhà thờ họ. Phần hậu cung phía sau gian giữa giúp tạo chiều sâu và tăng tính linh thiêng, biểu trưng cho sự vững bền, hậu vận tốt.
♦ Tham khảo trọn bộ hồ sơ nhà gỗ 5 gian có hậu cung 16 cột này TẠI ĐÂY

Mặt bằng nhà gỗ 5 gian có hậu cung
Căn nhà có các thông số kỹ thuật chính sau:
+ Tổng diện tích: 155m2 với kích thước phủ bì 12.75mx12.02m ( kích thước phủ bì không tính bậc tam cấp)
+ Gồm 16 cột đứng đất với 6 cột cái đường kính 28cm, 4 cột quân đường kính 26cm và 6 cột hiên đá đường kính 24cm.
+ Bước gian: ba gian giữa 2.5m, các gian buồng 2.375m, hiên rộng 1.65m.

Mặt cắt đứng nhà gỗ 5 gian có hậu cung
Mỗi ngôi nhà 5 gian là một bản nhạc kiến trúc độc bản, không có công trình nào giống công trình nào. Kích thước tiêu chuẩn nhà gỗ 5 gian không chỉ đơn thuần là “lấy số vàng từ thước Lỗ Ban”, mà nó còn phụ thuộc vào nhiều yếu tố.
- Diện tích đất xây dựng: đất là nền tảng, quyết định trước tiên đến kích thước tổng thể. Đất rộng thì có thể lựa chọn kích thước rộng để tạo sự bề thế, hoành tráng còn đất hẹp thì ưu tiên kích thước vừa đủ để đảm bảo sự cân đối.

- Công năng sử dụng: tuỳ vào công năng sử dụng mà gia chủ có thể nới rộng hay thu hẹp kích thước từng gian theo ý muốn.

Mẫu nhà gỗ 5 gian 2 trái tại Kiên Giang
- Địa hình, Vùng miền: mỗi vùng miền, mỗi địa hình khác nhau thì khí hậu cũng khác nhau, vì vậy độ dốc và độ cao tàu mái cũng khác nhau dẫn đến kích thước tổng thể cũng khác nhau.

- Ngân sách đầu tư: Tài chính được coi là yếu tố “cân bằng thực tế” để đưa ra kích thước khả thi nhất. Thi công hoàn thiện một căn nhà gỗ 5 gian (chỉ tính riêng phần gỗ) đã rơi vào khoảng từ 3,5 - 10 tỷ đồng tuỳ vào chủng loại gỗ quy mô công trình, vì vậy nếu tài chính dồi dào → chọn kích thước lớn, chạm khắc tinh xảo. Nếu tài chính hạn chế → thu gọn kích thước, ưu tiên sự tinh giản nhưng vẫn đảm bảo phong thủy.

Với nhiều năm kinh nghiệm, Nam Thành Phát đã trở thành thương hiệu uy tín trong lĩnh vực thiết kế, thi công nhà gỗ cổ truyền.
Tại nhà gỗ AFP Nam Thành Phát:
+ Xưởng sản xuất quy mô lớn, tọa lạc tại trung tâm xã Hải Hậu, Nam Định – cái nôi của nghề mộc truyền thống.
+ Đội ngũ nghệ nhân dày dặn kinh nghiệm, kết hợp thợ trẻ sáng tạo.
+ Hàng trăm công trình thực tế trải dài khắp Bắc – Trung – Nam.
+ Cam kết: nguyên liệu gỗ chuẩn có xuất xứ hàng thượng hạng, kỹ thuật thi công chuẩn cổ truyền, chính sách bảo hành bảo trì rõ ràng.
Nam Thành Phát tại Nam Định
Nam Thành Phát luôn khuyến khích khách hàng tận mắt tham quan xưởng, “thấy tận tay, sờ tận mắt” từng thớ gỗ, từng cấu kiện, hoa văn chạm khắc, tham quan nhà mẫu – để cảm nhận sự khác biệt của một đơn vị uy tín.
Nếu bạn đang ấp ủ dự định làm một ngôi nhà gỗ 5 gian kích thước chuẩn phong thuỷ – hãy để Nam Thành Phát biến giấc mơ ấy thành hiện thực. Hãy gửi yêu cầu tư vấn cho chúng tôi qua FORM hoặc qua hotline 0836 937 999 / 0889 889 663 để được tư vấn những mẫu nhà phù hợp nhanh chóng và chuẩn xác nhất.
>>> Tham khảo thêm những mẫu thiết kế nhà gỗ cổ truyền đẹp TẠI ĐÂY.
>>> Theo dõi các tin tức thi công nhà gỗ cổ truyền tiêu biểu TẠI ĐÂY.
>>> Tham khảo thêm những video hay về nhà gỗ TẠI ĐÂY.
MỌI THÔNG TIN CHI TIẾT XIN LIÊN HỆ:
CÔNG TY CỔ PHẨN AFP NAM THÀNH PHÁT
Youtube: Nhà Gỗ Nam Thành Phát.
Email: arc9.haithinh@gmail.com
® Tư vấn thiết kế trực tiếp: Tổng Giám Đốc - Kiến Trúc Sư Hải Thịnh